Zum Inhalt springen

Oscar's tiny houses

Ein nicht alltägliches Projekt

Die Stiftung Oscar Menz ist Eigentümerin eines in die Jahre gekommenes Einfamilienhaus mitten in der Stadt Zug. Das Haus ist an die Stiftung Phönix, Zug, vermietet. Mehrere Personen bewohnen die Liegenschaft und nutzen das Angebot des begleiteten Wohnens der Stiftung Phönix.

Wie kann die bestehende Baufläche für einen Ersatzneubau optimal und ökologisch ressourcenschonend genutzt werden?

Unser Ziel ist es, den neu entstehenden Wohnraum weiterhin an eine Organisation, die Menschen mit besonderen Bedürfnissen in Lebens- und Berufsfragen unterstützt und begleitet, zu vermieten. Attraktiver Wohnraum zu einem bezahlbaren Preis für Menschen mit besonderen Bedürfnissen, das ist für uns eine Herausforderung der besonderen Art.

Ausgangslage

Bild1HausGW5

Das sich im Besitz der Stiftung befindliche, ca. 80-jährige Einfamilienhaus ist an der Grenze seiner Lebensdauer angelangt. Die Liegenschaft befindet sich im Guthirt-Quartier in der Stadt Zug. Dieses Wohnquartier östlich der Industriestrasse, welches in der Entstehung am Rande der Stadt war, ist nun ein attraktiver, beliebter und ruhiger Wohnort mitten in der Stadt Zug. Öffentliche Verkehrsmittel, Einkaufsmöglichkeiten und Schulen befinden sich in unmittelbarer Nähe.

Nach oben

Sanierung oder Neubau?

Wir haben uns nach eingehender Diskussion für einen Neubau entschieden. Dieser soll auf dem bestehenden, 417m² grossen Grundstück erstellt werden. Anstelle eines grossen (Etagen-)Hauses sollen mehrere, kleinere Einheiten entstehen. Die Wohneinheiten sind kompakt und zweckmässig umzusetzen, so dass verschiedene Wohnformen innerhalb der Einheiten denkbar sind. Dabei wird die Ausgewogenheit von gemeinschaftlich genutzten Raumzonen und privaten Rückzugsorten im Innen- sowie im Aussenraum angestrebt. Die von der Stadt Zug geforderten zwei Parkplätze sollen primär als Besucherparkplätze genutzt werden.

Gründe für den Neubau

  • Bestehende Bausubstanz

    Die Sanierung der vorhandenen Bausubstanz ist aus ökologischen wie auch aus Kostengründen nicht zu verantworten.

  • Nutzung

    Die Nutzung der Liegenschaft wäre auch nach einer Sanierung „nur“ als klassisches Einfamilienhaus möglich.

    Die Nutzung eines klassischen Einfamilienhauses als Wohngemeinschaft mit vier und mehr Personen ist nicht mehr gefragt.

  • Lage und Grösse des Grundstück

    Die Bauparzelle kann nach den aktuell geltenden Ausnützungsvorgaben besser genutzt werden.

Nach oben

Was soll erreicht werden?

Das geplante Projekt soll das Potential der Parzelle sowie des Ortes besser nutzen und in Zukunft - im Vergleich zu heute - mehr Personen attraktiven Wohnraum bieten.

Wir setzten uns hohe Ziele betreffend Nachhaltigkeit. Auch im Betrieb wird ein möglichst ressourcenschonendes Gebäude angestrebt. Selbst produzierter Eigenstrom versorgt Haustechnik und Bewohnerinnen resp. Bewohner. Dafür wird eine möglichst grosse PV-Fläche umgesetzt. Die Wärmeerzeugung wird über eine Wärmepumpe, zentral für alle drei Einheiten, bereitgestellt.

  • Grundstück

    Optimale Nutzung der bestehenden Baufläche

  • Ökologie

    Ökologisch ressourcenschonend und nachhaltig

  • Wohnraum

    Bezahlbarer Wohnraum für 6 Personen

  • Innenausbau

    Innenausbau zeitgemäss und zweckmässig

  • Nutzung

    Vermietung an Stiftung Phönix Zug oder vergleichbare Organisation

Nach oben

Konzept und geplante Ausführung

Konzept

  • Prinzip

    Wohnprinzip der seriellen Addition ( drei “tiny“ Häuser in einem Haus)

  • Realisierung

    Realisierung in Splittlevels (um ein halbes Geschoss versetzte Ebenen)

  • Wohnangebot

    Wohnangebot für je 2 Personen je Wohneinheit (tiny house)

Materialisierung

  • Gebäude

    100% Holzelementbau auf Betonfundament

  • Fassade

  • Energie

    Luft-Wasser-Wärmepumpe & Photovoltaik-Anlage (PVA)

Realisierung

  • Bauzeit

    Bauweise ermöglicht eine im Vergleich sehr kurze Bauzeit.

  • Emissionen

    Beeinträchtigungen durch die Bautätigkeit sollten auf ein Minimum beschränkt bleiben.

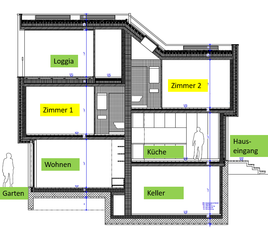
Raumnutzung

3 identische Wohneinheiten à ca. 70m² mit:

• 2 Schlafräumen mit eigener Nasszelle (DU/WC)

• Küche & Wohnzimmer mit Garten

• Keller/Waschraum

• Dachbalkon (Loggia)

Nach oben

Situationsplan

Lage

Die Liegenschaft befindet sich auf einem 417m² grossen Grundstück im Guthirt-Quartier in der Stadt Zug. Dieses Wohnquartier östlich der Industriestrasse, welches in der Entstehung am Rande der Stadt war, ist nun ein attraktiver, beliebter und ruhiger Wohnort mitten in der Stadt Zug. Öffentliche Verkehrsmittel, Einkaufsmöglichkeiten und Schulen befinden sich in unmittelbarer Nähe.

Parzelle

Die Parzelle gehört zur Wohnzone W2c. Mit einer Ausnützungsziffer von 0.5 lassen sich knapp 210m² anrechenbare Geschossfläche realisieren.

Geplant sind drei identische, aneinandergereihte Wohneinheiten: kleine Reihenhäuser, sogenannte „tiny houses“. Es gelingt auf 70m² eine eigenständige, in die Höhe gestapelte individuelle Wohnwelt zu entwickeln.

Das von Norden nach Süden leicht abfallende Gelände unterstützt die Anbindungen der Erdgeschosse mit ihren unterschiedlichen Höhenlagen. Auf dem oberen Erdgeschoss, auf der Nordseite, befindet sich der Koch- und Essraum. An diesem Ort befindet sich auch der Hauseingang über eine Treppe. Durch dieses Konzept hat jedes Haus Zugang zum gemeinsamen Aussenraum, dem gekiesten „Eingangshof“ aller drei Häuser.

Der Gartenraum im Süden, erreichbar über das Wohnzimmer, ist ein gut besonnter, weiterer Aussenraum. Die zwei Schlafzimmer mit jeweils eigenen, kompakten Bädern erreicht man über die Treppenläufe nach oben. Eine „Dachzinne“ zuoberst auf dem Dach ist ein wunderbarer Rückzugsort.

Die von der Stadt geforderten zwei Parkplätze sollen primär als Besucherparkplätze genutzt werden.

Nach oben

Visualisierung

  • 106_Materialkonzept Baueingabe-5

    Aussenansicht

    Richtung Süd/West

  • 106_Materialkonzept Baueingabe-6

    Aussenansicht

    Richtung Nord/Ost

  • BildProjVISU04.1

    Aussenansicht

    Velounterstand Richtung Nord/Ost

  • 106_Materialkonzept Baueingabe-8

    Innenansicht

    Eingangsbereich und Küche

  • 106_Materialkonzept Baueingabe-7

    Innenansicht

    Gemeinsamer Wohnraum mit Aufgang zur Küche/Eingangsbereich

Nach oben